by Rene Flietner | Juli 6, 2012
Brückenlager – Einbauüberwachung
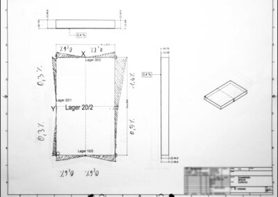
Überwachung Lagereinbau und Ablassen einer kurzzeitig eingeschobenen ICE Brücke
Vom Nebenjob zur gewerblichen „Vollzeit-Nebenbeschäftigung“
Während meines Bauingenieur- und Architekturstudium zwischen 1995 und 2006 arbeitete ich bundesweit im Bereich Brückentechnik. Hierzu zählten vor allem der Einbau und Sanierung von Fahrbahnübergängen und Brückenlagern. Der zu Anfang gedachte Nebenjob zur Finanzierung meines Studiums stellte sich schnell als gewerbliche „Vollzeit-Nebenbeschäftigung“ heraus. Neben anspruchsvollen Aufgaben wuchs auch die Verantwortung. So nahm ich nach dem Studium, abermals zur Finanzierung, doch diesmal meiner Selbstständigkeit die Herausforderung an den Lagereinbau an Brückenbauwerken zu überwachen und zu kontrollieren. Hierzu zählten die Nullmessung nach dem Einbau der Lager sowie nach Ablassen des Bauwerks, Spaltmessung, Überprüfung des Korrosionsschutzes und vieles mehr. Zudem das Erarbeiten von Sanierungskonzepten im Falle einer Lagerschädigung beispielsweise durch Verschleiss oder Schiefstellung verursacht. Auch das Überwachen des Lagervergusses zählte zu meinen Aufgaben. Die spannendste Aufgabe war jedoch, die Überwachung des Ablassen einer kurzzeitig eingeschobenen ICE Brücke die innerhalb von 72 Std gegen eine alte ausgetauscht wurde. Vom Lagereinbau bis zur Freigabe des Zugverkehrs am darauffolgenden Montag verblieben nur 36 Std Zeit. Die Zeit musste genügen, dass der Vergussmörtel ausreichend abbindet und die erforderliche Druckfestigkeit aufweist. Es war Sommer und die Umgebungsluft ausreichend warm. Somit konnte der Mörtel dann zu genüge aushärten.
by Rene Flietner | Mai 12, 2011
Brückenverschiebung – A 14 bei Leipzig
Bauwerkskorrektur einer Autobahnüberführung nach Pfeilersetzung
Dank an die Helfer Ingo Schuller und Frank Rottwilm !!!
by Rene Flietner | Juli 20, 2009
Drehbrücke Bremerhaven – Neuausrichtung*
Ausrichtung der Drehbrücke und Mörtelverguss des Pylon
Der Brückenlagerhersteller BT Bautechnik GmbH aus Norderstedt wurde mit der endgültigen Positionierung und Ausrichtung der neuen Glasrohren-Drehbrücke am historischen Hafen in Bremerhaven beauftragt. Das Konzept dazu erarbeitet Ingo Stamleder von IST aus Büdingen. Ich führte die praktischen Arbeiten dazu aus. Hierzu musste der Pylon mit 4 Hydraulikpressen neu ausgerichtet werden. Somit konnten die Hydraulikbolzen des drehbaren Teils am festen Überbau reibungsfrei einrasten. Anschließend wurde der Kranz des Pylons mit dem Fundament mit Fliessmörtel untergossen.
Siehe auch www.bremerhaven.de
by Rene Flietner | Mai 6, 2009
Schrägseilbrücke Niederwartha – Seilhauben
Einbau von Seilhauben an der Elbe-Schrägseilbrücke Niederwartha
Für die Firma BT Bautechnik aus Norderstedt habe ich an 36 Seilen je 2 Seilhauben eingebaut. Diese dienen zum Witterungsschutz der Seildämpfer die wiederum die Seile vor Anschlagen bei starken Winden am Überbau und Pylon schützen.
Die Seilhauben bestehen aus einem speziellen Formteil aus Gummi und werden mit einem 2 Komponenten-Kleber zusammengefügt. Damit der Klebstoff dauerhaft hält kann dieser nur bei trockenem und warmen Wetter verarbeitet werden. Entsprechend der schwankenden Temperaturen im April und Mai stellte das eine besondere Herausforderung für mein Team und mich dar.
Vielen Dank an die Helfer und Helferinnen: Jan Stauf, Lasse Kutzbach, Jeremy, Miriam und Hannes
Einen Nachfolgeauftrag erhielt ich anschließend noch für den Einbau der Seilhauben an einer Rheinbrücke in Düsseldorf. Auch hierfür besten Dank für die Mitwirkung an Jan Stauf.
by Rene Flietner | Mai 6, 2009
by Rene Flietner | Juli 18, 2008
Dortmund/Ems/Kanal – Brückenlager- & Fahrbahnübergangssanierung
Beispiel einer Brückenlager- & Farbbahnübergangssanierung im Zuge einer Brückensanierung über den Dortmund-Ems-Kanal bei Meppen
Abtrennen der alten und Einbau einer neuen Fahrbahnübergangskonstruktion Typ ÜB 1 am WDL West
Einbau einer ÜB 1 mit zusätzlichen Fingerplatten zur Geräuschminderung am WDL West
Einbau neuer Elastomerlager
by Rene Flietner | Mai 16, 2007
Fahrbahnübergänge – Scherensanierung
Scheren-Fahrbahnübergangssanierung im Zuge der A8 bei Göppingen
by Rene Flietner | Jan. 1, 2005
Fahrbahnübergänge – Neubau & Sanierung*
Beispiel eines halbseitigen Einbaus einer Fahrbahnübergangskonstruktion ÜB 1 in zwei Bauabschnitten im Zuge einer Fahrbahn- bzw. Brückensanierung
Einbau einer ÜB 1 an einer neuen Brücke